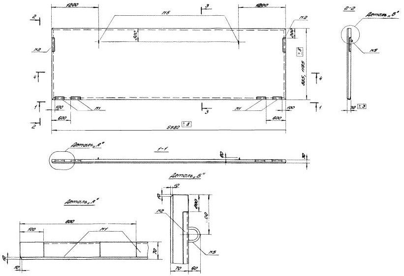
ПСЛН 1,2-6-721

Чертеж изделия:
Чертеж ПСЛН 1,2-6-721
Характеристики изделия:
ПараметрЗначение
Длина5980 мм
Ширина70 мм
Высота1185 мм
Масса960 кг
Нормативный документСерия 1.432-10

Сборные предварительно напряженные стеновые панели из легких бетонов для неотапливаемых промышленных зданий по Серии 1.432-10.

ПСЛН 1,2-6-721  Парапетная панель, армированная сталью Вр-II.